藏书网
又拯救一套即将装修翻车的房子。前几天直播间一位复式楼业主找到我,说他家...
紫槐评家居
2026-02-26 07:35:32
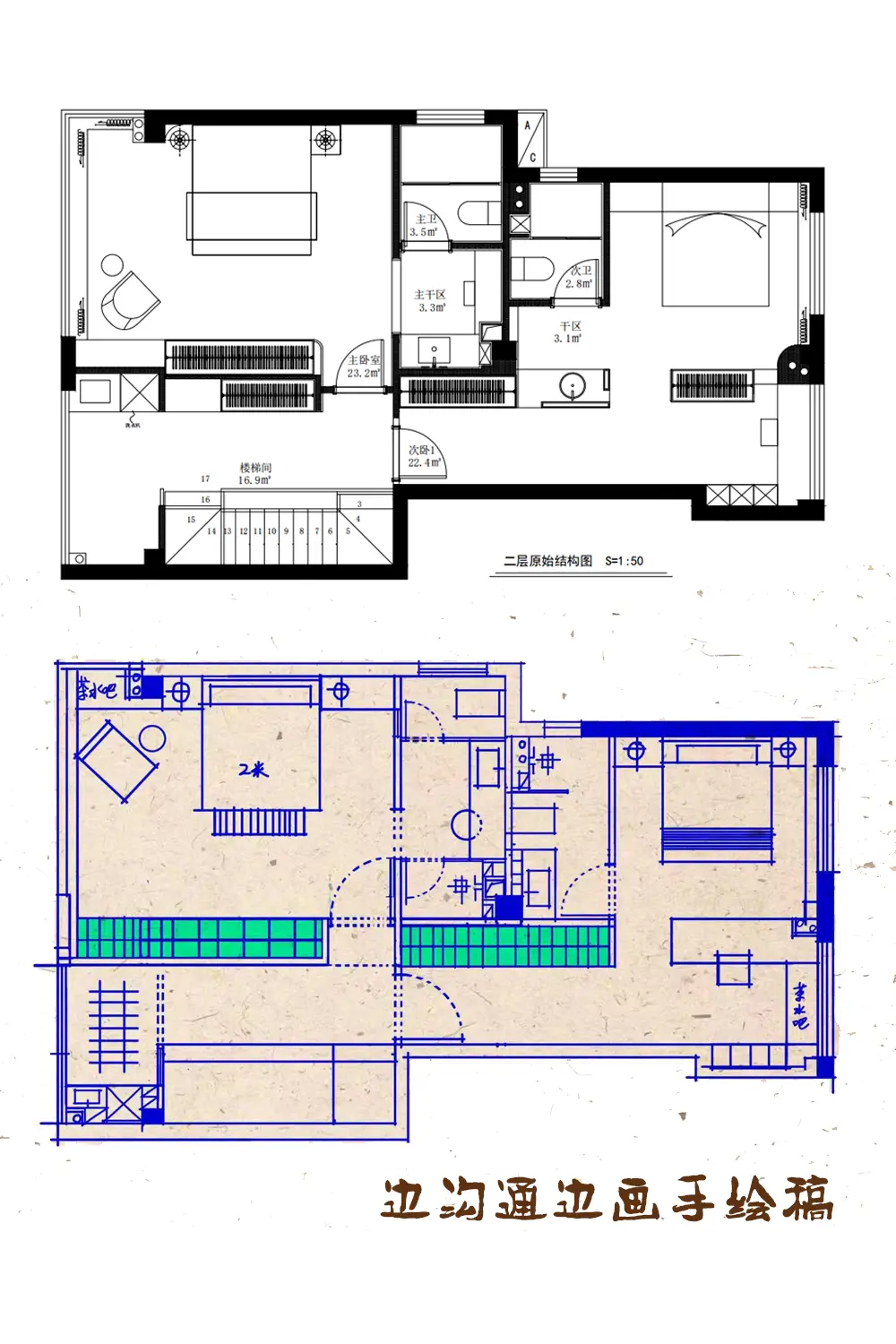
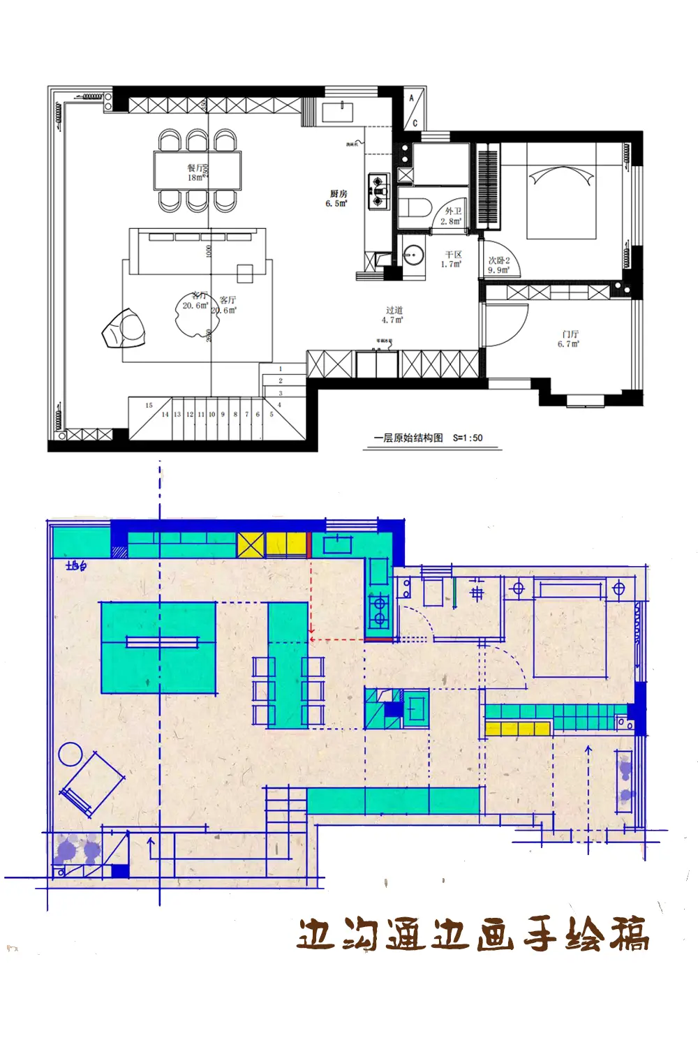
又拯救一套即将装修翻车的房子。前几天直播间一位复式楼业主找到我,说他家马上开工浇筑楼梯了,让看看他家平面方案,还说找了几个设计师了,这应该是最好的方案了。我一看图纸!惊呆我了!那是他没有见过更好的方案啊!按照这样装修房子不完了吗?这哥们还真听进去了! 话不多说,大家自己看设计前后的对比吧! 最后真心想对准备装修的业主说,平面方案很关键,平面方案决定这个未来的装修走向,大家说是不是?欢迎评论区进行讨论。
0
阅读:7
猜你喜欢
“太贪心!”2014年西安一男子租了一套毛坯房,自费装修后,一租就是八年。退租
【63评论】【39点赞】
装修
毛坯房
史海钧天
2026-02-24
就很离谱!一女子花35万买房,突然有一天发现房子已装修完住着陌生人,当地回应:开
装修
旭日祥瑞
2026-02-25
硬装越简单,家里越显大!穷装就照搬我家~
【1评论】【2点赞】
装修
吸顶灯
瓷砖
软装
君君自装软装中
2026-02-25
大平层意式轻奢装修参考
【2点赞】
装修
家居美图收集
2026-02-23
我第一次看见这图的时候,就一个想法:这设计师得喝了多少啊?还是甲方爸爸的审美,
【5评论】
设计师
落雨知清辰
2026-02-25
男子吐槽160万的江景房,被爸妈弄成了废品回收站,简直太崩溃了。房款加装修,花了
【1点赞】
装修
书房
卖鱼老头儿
2026-02-25
紫槐评家居
感谢大家的关注
热门分类
推荐
热榜
军事
NBA
体育
社会
明星八卦
娱乐
财经
科技
汽车
历史
国际
游戏
动漫
公益
搞笑
商业
互联网
数码
国际足球
房产
家居
时尚
科学探索
职场
育儿
股票
教育
影视
情感
热点
中国军情
武器
中国南海
中国足球
亚洲杯
科比
综合体育
CBA
投资
大咖秀
外汇
创业
风口
SUV
豪车
概念车
优惠
新能源
美国
欧洲
朝日韩
俄罗斯
孕期
街拍
婚姻
正能量
家居
TOP
1
这种楼梯住几代人都垮不了。
2
听说一个最狠的租客,房东找茬不退押金,于是买了200多个鸭蛋,偷偷灌入装修夹层中
3
还得是有钱人,这个沙发比龙椅还霸气。
4
出差住进一家酒店,发现卫生间里有个奇怪的池子,就在马桶旁边。第一次在酒店见到这种
5
入得厨房,出得厅堂。如果是我,就不让她入厨房了。毕竟是花了彩礼娶回来的。当
6
玄关有哪些设计是过度装修?收到设计师发过来平面图布局的提问!下面一张平面布局,两
7
这应该算是公积金缴存的天花板级别了吧很多人都盯着上班的税后到手的收入,殊不知
8
董洁家的桌子竟然有条缝,这是什么设计?
9
我第一次看见这图的时候,就一个想法:这设计师得喝了多少啊?还是甲方爸爸的审美,
家居
最新文章
1
我第一次看见这图的时候,就一个想法:这设计师得喝了多少啊?还是甲方爸爸的审美,
2
这应该算是公积金缴存的天花板级别了吧很多人都盯着上班的税后到手的收入,殊不知
3
董洁家的桌子竟然有条缝,这是什么设计?
4
听说一个最狠的租客,房东找茬不退押金,于是买了200多个鸭蛋,偷偷灌入装修夹层中
5
入得厨房,出得厅堂。如果是我,就不让她入厨房了。毕竟是花了彩礼娶回来的。当
6
玄关有哪些设计是过度装修?收到设计师发过来平面图布局的提问!下面一张平面布局,两
7
还得是有钱人,这个沙发比龙椅还霸气。
8
这种楼梯住几代人都垮不了。
9
出差住进一家酒店,发现卫生间里有个奇怪的池子,就在马桶旁边。第一次在酒店见到这种