大海星辰将来有济南的一份,未来中国“星舰”可能要在济南造!济南大重载火箭及总装制

岁月如歌之坊 2025-08-26 22:07:51

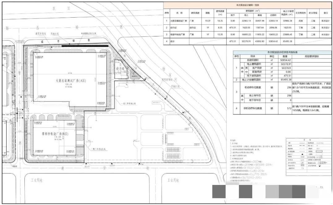
大海星辰将来有济南的一份,未来中国“星舰”可能要在济南造!济南大重载火箭及总装制造基地项目将要开工。 目前基地处于规划许可批前公示状态。该基地由中国航空规划设计研究院总公司负责设计,地点在济南临港开发区温梁路这边。 基地项目主要由三大建筑组成:火箭总装测试厂房、零部件制造厂房和动力厂房。 值得一提的是,这个项目不是国家火箭项目,而是商业火箭项目。目前深蓝航空、天兵科技、星河动力都将火箭总装基地和发动机测试基地放在了济南。 这个火箭总装基地属于大重载火箭总装基地,也就是说,将会用于制造商业大重型火箭。目前国内最大的商业液体火箭公司天兵科技也和济南签约,将在济南成立总装基地和发动机制造基地。 到2027年,济南将形成年产40套火箭发动机能力和年产24发固体火箭、10发液体火箭配套能力。其中包括国内最大的商业液体发动机重型火箭。 至于在哪里发射,这也不是问题,去海阳东方航天发射港就行了。运输也不是问题,通过小清河用船拉到山东海阳就行了,反正东方航天发射港就在海边。 这样一来,说不定将来的中国“星舰”会在济南制造呢。以后人类走向星辰大海,会有济南的一份贡献。

0 阅读:39
岁月如歌之坊

岁月如歌之坊

感谢关注,期待与您分享更多好内容