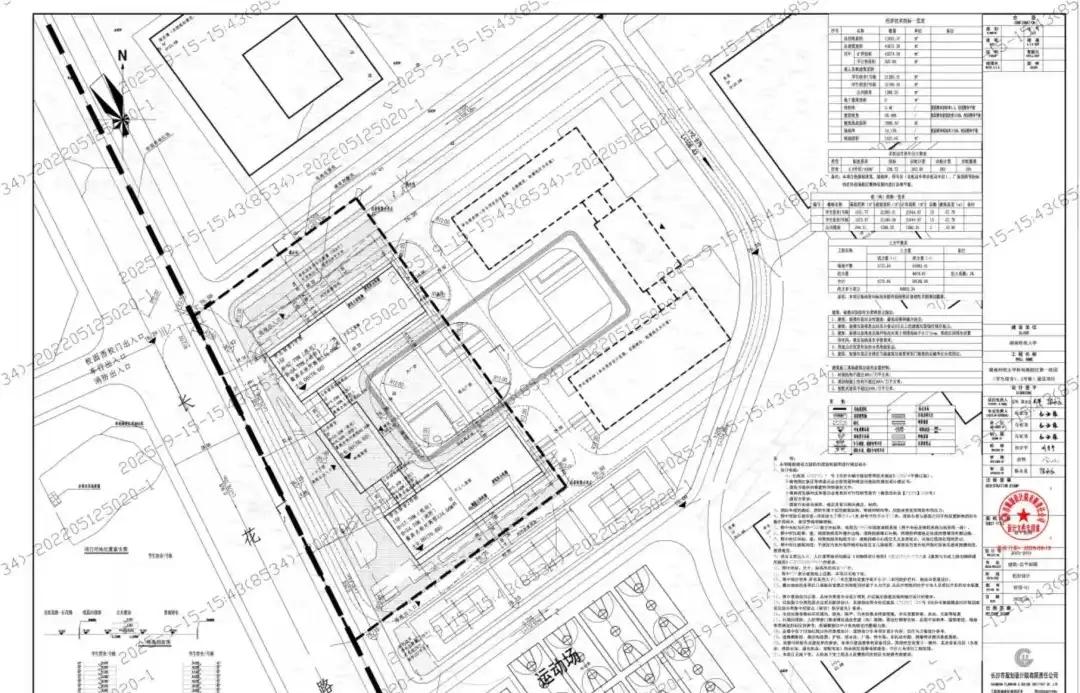
湖南师大科创港校区宿舍项目公示,科创高地建设加速推进 近日,长沙市自然资源规划局公布湖南师范大学科创港校区第一组团(学生宿舍1、2号栋)建设项目批前公示,标志着这座定位“国际一流科教创新综合体”的新校区建设迈入实质阶段 。作为湘江科学城核心配套工程,该校区的推进将为区域“校区、园区、社区”三区融合注入关键动力。 科创港校区坐落于长沙市湘江科学城万家丽路西延线以南、长花路以东、潭州大道以西、为盛路(原花塘路)以北的核心地块,总用地面积达1340亩,总建筑面积约75.33万平方米,与二里半主校区相距约22公里。校区间已实现地铁贯通,未来还将衔接规划中的地铁5号线西延线,进一步融入长沙轨道交通网络,便捷串联主城与湘江科学城腹地。周边“三纵四横”路网加速成型,为盛路、惟楚路等道路同步推进,未来与暮坪大桥河西联络线衔接后,5分钟即可跨江抵达河东 。 项目于2025年9月26日正式开工,分三期推进建设,计划2028年9月迎来首批新生,2030年全面竣工。建成后将与现有二里半、南院等五大校区形成“互补呼应”格局,破解当前校区分散的资源整合难题。此次公示的第一组团宿舍为四人间配置,采用上床下桌设计,床铺规格达2×0.9米,将为师生提供高品质居住空间。而根据最新招标计划,后续第二至第六组团已启动勘察设计招标,涵 盖宿舍3-6号栋、公共教学楼、图书信息中心及高端科研平台等核心功能区,其中第五组团将集中布局人工智能与先进计算科创中心、量子效应及应用技术创新平台等尖端设施 。 作为湖南师大“双一流”建设的核心承载,科创港校区以“新工科”为核心,重点布局量子科技、人工智能、化工新材料等7个新兴交叉学科集群及1个核心基础学科集群。规划导入省部级以上科研创新平台20余个,新增重大科研平台6个,实施“创新人才千万工程”,预计配置院士、长江学者等高端人才1000人,吸纳博硕士群体10000人,2033年力争产出原创性成果1000余项 。 该项目一头衔接国家“两重”资金支持,一头对接湘江科学城万亿级产业集群,与湘江科学中心、湖南钢铁技术研究院等重大项目形成科创合力。随着智慧可再生能源站等配套项目落地,校区将依托湘江水冷热源等绿色技术实现低碳运营,打造“会呼吸、会思考、会生长”的未来校园样板 。


