听劝!有点小钱一定要拥有一套属于自己的大房子❤️轻法式江景大平层,温馨又高级!真的好好宅呀!(户型图在最后)
✅整理了各区域装修干货!相信你一定用得上!
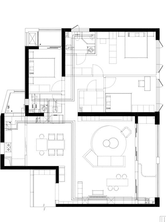
➡️客厅:
无主灯设计让空间开阔色温3000k;大面积奶油色墙漆,小面积拼橄榄绿;地面是米灰色亮光砖(尺寸60*120)耐脏、好打理
➡️网红玄关:
交错的半圆拱门角度为65R!木工做好后再上石膏板,注意收口要圆润不然容易开裂。玄关宽度为1.5!
➡️阳台花园
保留开放式阳台,打造高空小花园。spc地板防水耐磨,加高玻璃栏杆,顶部木质吊顶。不怕水不怕晒~阳台洞洞板养花收纳翻倍!高空下午茶不要太舒服
➡️厨房/餐厅
客餐厨一体设计,中西厨用玻璃滑门分区。整面墙的餐边柜收纳很棒。餐边柜材质是颗粒板,柜门是米灰色肤感膜背景墙用pu线条点缀便宜又好看~
➡️卧室
20平的法式主卧小套房,含洗手间衣帽间。用衣柜隔出5平衣帽间,分区合理好看又好用~柜体都是米白色肤感膜好看敞亮,床头绿色拱形造型很加分
谢谢大家喜欢我家
欢迎抄作业❤️
















