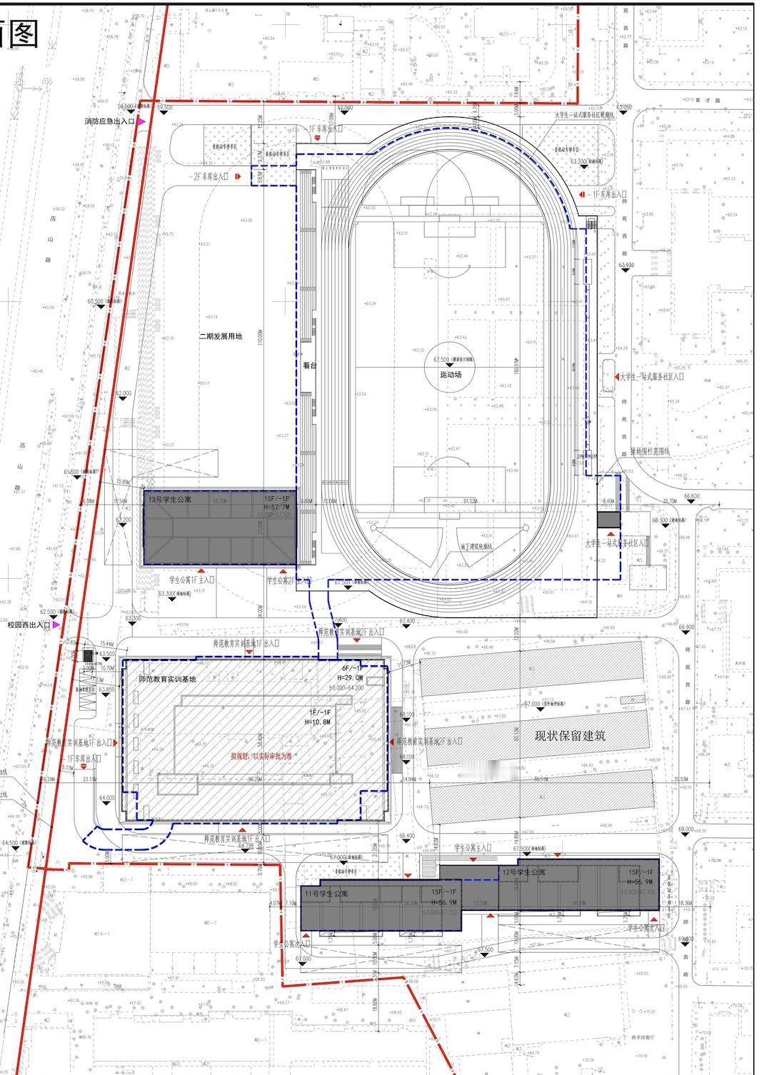
山东师范大学再度扩容,新开建两大项目! 🟠 近期,为完善校园功能布局、提升教学实训条件和学生住宿环境,山东师范大学在千佛山校区西南片区已完成拆迁的地块上,启动了师范教育实训基地和学生公寓及大学生一站式服务社区两大项目建设,进一步提升校区整体服务能力 🔵 山东师范大学师范教育实训基地建设项目 ▫️项目总建筑面积约3.16万㎡,总投资约2.26亿元。主要建设一栋高度约28.2米、地上六层地下一层的师范教育实训基地,同时配套道路、绿化及室外管网等附属工程,并规划设置105个停车位 ▫️从阿海于昨天航拍的画面来看:该地块已进入桩基施工阶段,场内可见多台旋挖钻机和吊车同步作业,部分桩位已经完成成孔并吊装钢筋笼,整体仍处于地基基础施工的前期阶段 🟡 山东师范大学千佛山校区11号、12号、13号学生公寓建设项目 ▫️项目总建筑面积约8万㎡,总投资约5.13亿元,主要建设3栋现代化学生公寓与大学生一站式服务社区,并配套建设400米标准田径场及附属用房。其中,11号公寓建筑面积约1.8万㎡,12号公寓约1.7万㎡,13号公寓约2.4万㎡,一站式服务社区约2.1万㎡。项目建成后将新增4000余个高标准学生床位,并打造集生活服务、学业指导、文化休闲于一体的“一站式”服务空间 ▫️学生公寓整体推进较快,目前11号、12号公寓所在区域基坑开挖及支护基本完成,多台塔吊已经就位并陆续展开地下结构施工。13号公寓进度相对领先,整体已进入地下结构施工阶段,为后续主体结构出地面做准备 海纳百川mcc 山东师范大学 山师大 山师 山东师范大学千佛山校区 济南生活





