藏书网
抄作业的背景墙终于完工啦|附详细CAD图纸✅
明清谈家居
2025-12-01 00:00:03
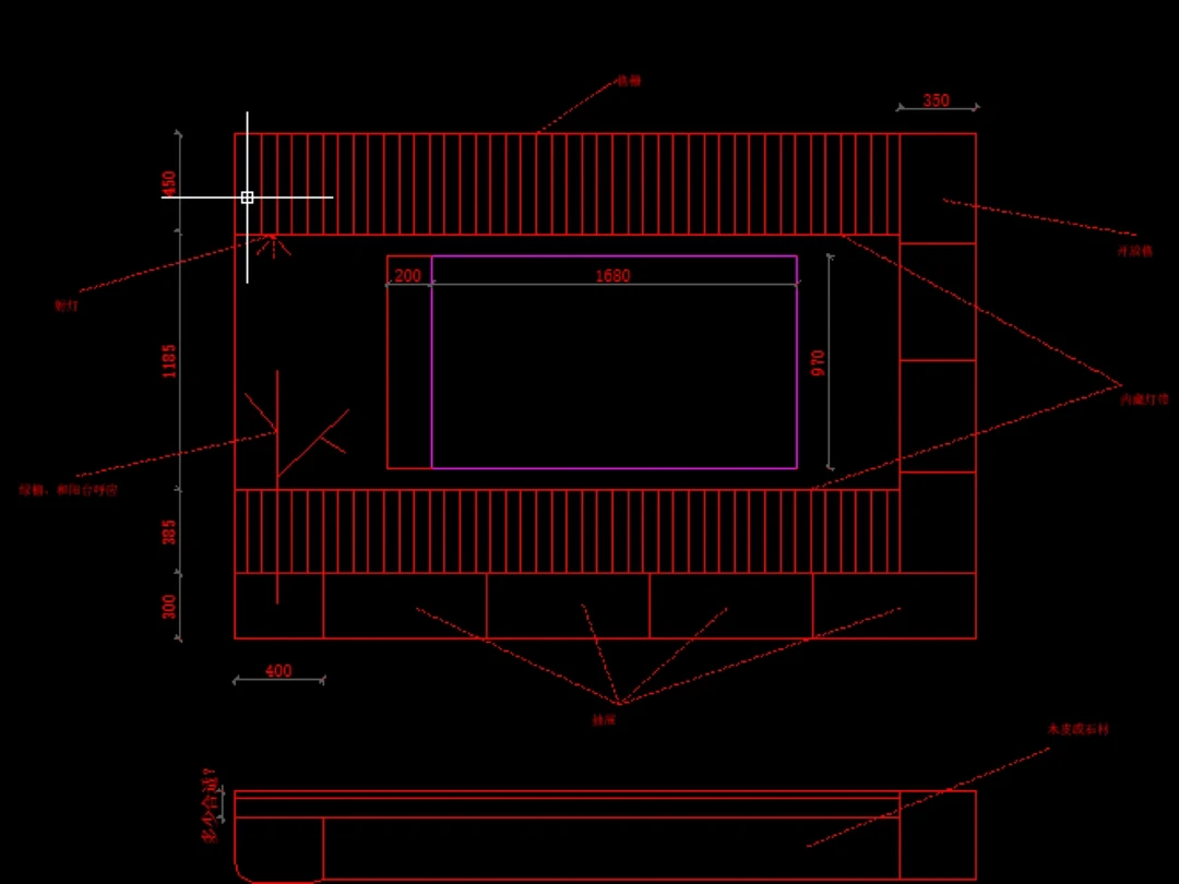
自己在上找的电视背景墙,根据家里背景墙尺寸稍微对尺寸进行了优化调整,附上自己画的详细CAD图纸🧐📝 需要的集美快快收藏起来💕 🍃本来我的电视背景墙设计师设计了两版,但我和老公都不喜欢,所以这个背景墙最终其实是自己设计的[笑哭R]老公自己画的CAD图纸,设计师稍微调了下比例,右侧本来还想做一个开放格,但长度的原因最终放弃了,事实证明有些东西越简单越耐看🥰 背景墙的绿植也买回来了,最后买的是龙血树,最终效果等种进去了再更新[萌萌哒R]想看最终效果的别忘了点❤️➕关注哦👭
0
阅读:0
明清谈家居
感谢大家的关注
作者最新文章
1
翻遍,还是最爱我的140㎡小家!
2
真的不是大平层,是我120平的小家啊!
3
真不是大平层,是我120 ㎡的小家
4
奈瓦沙🇰🇪|新月岛徒步Safari,跟🦒快乐贴贴
5
从图一到图二,越看越幸福的家😁
6
33岁靠自己,终于住进梦中情屋!
7
33岁精致女生,一个人住120平小家真的好幸福
8
33岁全款拿下“钻石冰”,轻松拿捏夏日!
9
恭喜我吧🎉终于住进自己暖暖的家!
10
长大真好!有自己的家真好!
热门分类
推荐
热榜
军事
NBA
体育
社会
明星八卦
娱乐
财经
科技
汽车
历史
国际
游戏
动漫
公益
搞笑
商业
互联网
数码
国际足球
房产
家居
时尚
科学探索
职场
育儿
股票
教育
影视
情感
热点
中国军情
武器
中国南海
中国足球
亚洲杯
科比
综合体育
CBA
投资
大咖秀
外汇
创业
风口
SUV
豪车
概念车
优惠
新能源
美国
欧洲
朝日韩
俄罗斯
孕期
街拍
婚姻
正能量
家居
TOP
1
这个房子的设计有点奇葩!不得不感叹真是一个敢设计,一个敢建。
2
大家会给自己的手机桌面“搞装修”吗?[doge]好奇心观察局
3
阳光明媚,晾衣阳台上,风景美如画。
4
紫色睡衣少女,浴室自拍,温柔氛围
5
慵懒的午后,阳光悄悄溜进客厅,把温柔洒在沙发上。换上一身柔软的家居服,卸下一天
6
全红婵家建的房子设计失误了,没想到对面邻居的房子建那么高,把自己房子的光线都挡了
7
看到香港大埔这场大火我在心里默默做了几个决定,今后1、家里有条件一定要装个浴
8
你能想象吗?一对空姐母女,竟优雅地坐卧在金光闪闪的豪宅之中,这画面简直太吸睛,让
9
一个女孩坐在沙发上。
10
这位美女坐在楼梯上,静享休闲时光。
家居
最新文章
1
这个房子的设计有点奇葩!不得不感叹真是一个敢设计,一个敢建。
2
聚会写真风格
3
我一直以为这玩意儿是用砖头和水泥砌成的,没想到是塑料的,长见识了。成本5块钱,不
4
我脑袋进水了吗?当初怎么就花130多买了这么一件衣服?5年了,在衣柜里一次也
5
这是一个改造加固的工程,通过设计计算,这个柱子满足不了当前的承载力,需要加固!
6
粉裤少女,轻盈漫步在现代楼梯间
7
我以为到表姑家串门,他们会挺欢迎。坐着聊天时,我突然口渴想喝水,就轻手轻脚去厨房
8
阳光明媚,晾衣阳台上,风景美如画。
9
看到香港大埔这场大火我在心里默默做了几个决定,今后1、家里有条件一定要装个浴
10
香港被大火烧过之后的房子!这一下修复起来确实挺有难度的,墙面都被烧得裂开了,