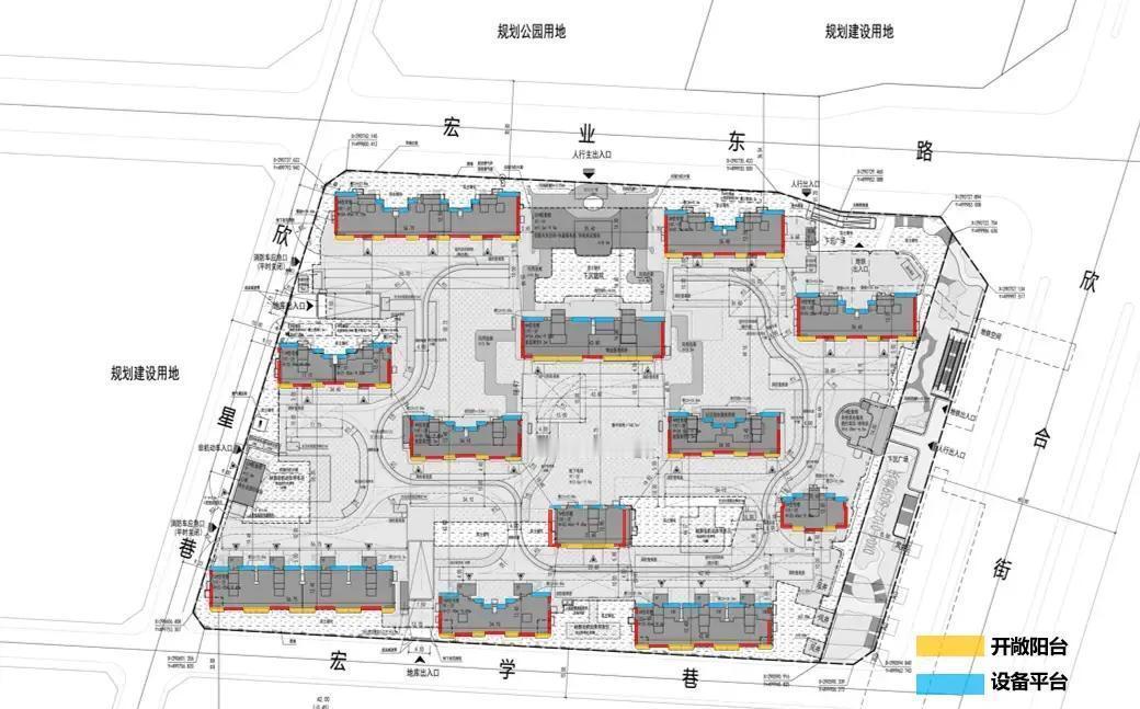
大兴西红门又出重磅新盘!就在1月28日,中建壹品拿下的这个6038地块,总平图正式公示,拿地才85天就推进这么快,速度真心亮眼。 这个项目就在西红门镇,紧挨着规划中的地铁19号线二期西红门东站,出入口直接连到小区里,未来坐地铁零距离,通勤超级方便。根据最新轨道交通规划,这条南延线全长12.7公里,新建6站,预计2029年底建成通车,西红门东片区交通一下子就拉满。 小区规划12栋9到18层住宅,总共648户,用地面积约2.76万平,地上计容建筑规模6.35万平,容积率只有2.3,这是西红门目前容积率最低的住宅地块,比周边常见2.5低不少。楼间距更宽,绿化空间更大,住着肯定舒服。层高主流3米,楼王户型达到3.1到3.3米,空间感强。 亮点直接拉满“好房子”标准:首层架空层、风雨连廊、下沉式庭院会所、开敞阳台全都有!尤其是大兴第一个全开敞阳台设计,尺度比区域内常见的奇偶阳台大太多,赠送面积实打实。社区双大门设计,主门北侧39米宽,对着未来城市公园,景观资源直接拉满;南侧靠近规划学校,教育配套潜力不错。商业也配齐,放在北侧和东侧地下,结合下沉广场使用。 中建壹品这次底价19.04亿拿地,楼面价刚好3万/平,比他们之前拿的邻近地块低了1.15万/平,成本优势明显。加上低密+地铁双加持,未来大概率主打刚需和刚改小户型产品,避开大平层扎堆的风险,性价比高到爆。 整个西红门东新盘不少,但这个地块低容积率+高品质配置,居住体验直接拉高一个档次,值得重点关注


